新築一戸建て 多賀城市笠神2丁目
所在地
多賀城市笠神2丁目
4,500万円
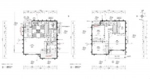
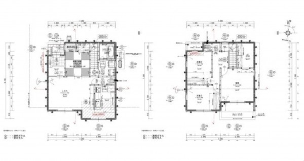
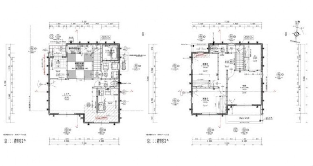
30.80坪
4LDK
物件概要
- 交通
-
仙石線 下馬駅 まで 徒歩12分
仙石線 西塩釜駅 まで 徒歩19分
東北本線 塩釜駅 まで 徒歩22分
- 接道状況
-
北側 公道6m 間口約11.3m
東側 公道6m 間口約13.4m - 土地面積
- 公簿 171.47㎡ (51.86坪)
- 建物面積
- 101.84㎡ (30.80坪)
- 築年数
- 2026年 (令和8) 9月 完成予定
- 建ぺい率
- 60%
- 容積率
- 200%
- 土地権利
- 所有権
- 構造および階数
- 木造 地上2階建
- 小学校区
- 天真
- 中学校区
- 多賀城
- 私道負担
- なし
- 地目
- 宅地
- 現況
- 引渡時期
- 相談
- 駐車場
- 有 2台
- 上水道
- 下水道
- ガス
- 都市計画
- 市街化区域
- 用途地域
- 1種中高
- 建築確認番号
- 第R07確認建築東建セ-0851号
- 設備・条件
- システムキッチン、食器洗浄乾燥機、IHクッキングヒーター、オール電化、シャンプードレッサー、洗浄便座、追い焚き、複層ガラス、ルーフバルコニー、ウォークインクローゼット、モニタ付インターホン、駐車場2台分、トイレ2箇所、浄水器、ディンプルキー、照明器具付き、庭、火災報知器等設置済、新築時・増改築時の設計図書
- 備考
- 取引態様
- 仲介

