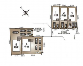
新築一戸建て 多賀城市下馬3丁目3号棟
所在地
多賀城市下馬3丁目3号棟
3,080万円
28.90坪
4LDK
ZEH水準。2026年3月完成予定の4LDK物件です
・ミラックマツヤまで徒歩12分(約890m)
・カワチ薬品多賀城店まで徒歩17分(約1360m)
物件概要
- 交通
-
仙石線 下馬駅 まで 徒歩13分
- 接道状況
- 南西側 公道4m 間口約7.1m
- 土地面積
- 実測 108.51㎡ (32.82坪)
- 建物面積
- 95.57㎡ (28.90坪)
- 築年数
- 建ぺい率
- 60%
- 容積率
- 160%
- 土地権利
- 所有権
- 構造および階数
- 木造 地上2階建
- 小学校区
- 天真 ( 1500m )
- 中学校区
- 多賀城 ( 1700m )
- 私道負担
- 地目
- 宅地
- 現況
- 建築中
- 引渡時期
- 期日指定
- 駐車場
- 有
- 上水道
- 下水道
- ガス
- プロパン個別
- 都市計画
- 市街化区域
- 用途地域
- 1種住居
- 設備・条件
- システムキッチン、洗浄便座、浴室乾燥機、複層ガラス、モニタ付インターホン、駐車場2台分、床下収納、トイレ2箇所
- 備考
- 取引態様
- 仲介

