新築一戸建て 多賀城市伝上山2丁目A棟
所在地
多賀城市伝上山2丁目A棟
4,835万円
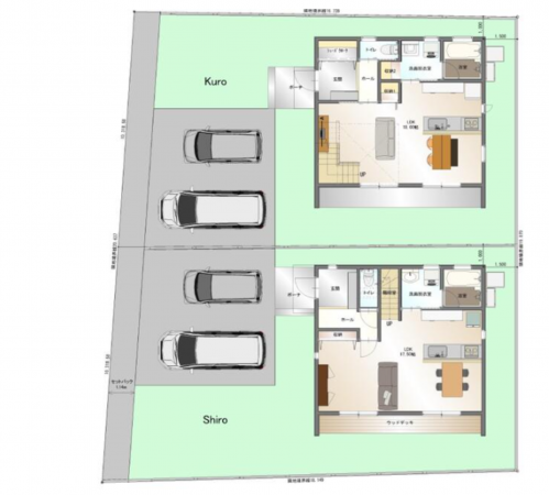
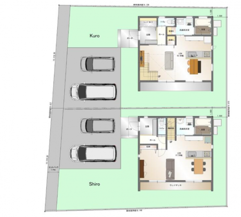
26.04坪
3LDK
2026年2月末引渡し可オール電化新築物件です!
JR東北本線「塩釜」駅(徒歩15分)、JR仙石線「多賀城」駅(徒歩17分) も利用でき、2沿線3駅利用可能で通勤・通学に便利
木と漆喰を使用したこだわりの自然素材の家
ヨークベニマル塩釜店まで 徒歩11分(848m)
ファミリーマート多賀城留ケ谷店まで徒歩5分(386m)
物件概要
- 交通
-
仙石線 下馬駅 まで 徒歩12分
東北本線 塩釜駅 まで 徒歩15分
- 接道状況
- 西側 私道4m 間口約10.3m
- 土地面積
- 公簿 161.17㎡ (48.75坪)
- 建物面積
- 86.11㎡ (26.04坪)
- 築年数
- 2026年 (令和8) 2月
- 建ぺい率
- 60%
- 容積率
- 160%
- 土地権利
- 所有権
- 構造および階数
- 木造 地上2階建
- 小学校区
- 多賀城 ( 887m )
- 中学校区
- 多賀城 ( 1128m )
- 私道負担
- 無
- 地目
- 宅地
- 現況
- 建築中
- 引渡時期
- 予定 2026年2月 末
- 駐車場
- 有
- 上水道
- 公共
- 下水道
- 公共
- ガス
- 都市計画
- 市街化区域
- 用途地域
- 1種中高
- 設備・条件
- 側溝、オール電化、システムキッチン、カウンターキッチン、IHクッキングヒーター、食器洗浄乾燥機、シャンプードレッサー、モニタ付インターホン、洗浄便座、複層ガラス、追い焚き、駐車場2台分、エアコン、照明器具、ディンプルキー
- 備考
- 取引態様
- 仲介

