新築一戸建て 塩竈市南錦町B棟
所在地
塩竈市南錦町B棟
4,410万円
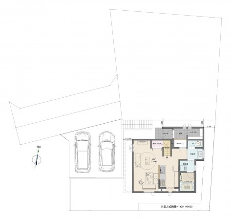
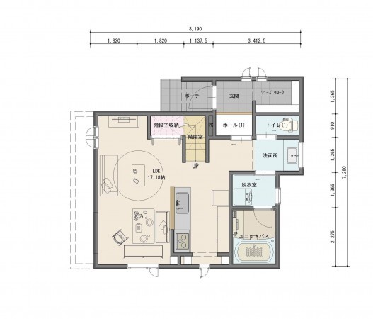
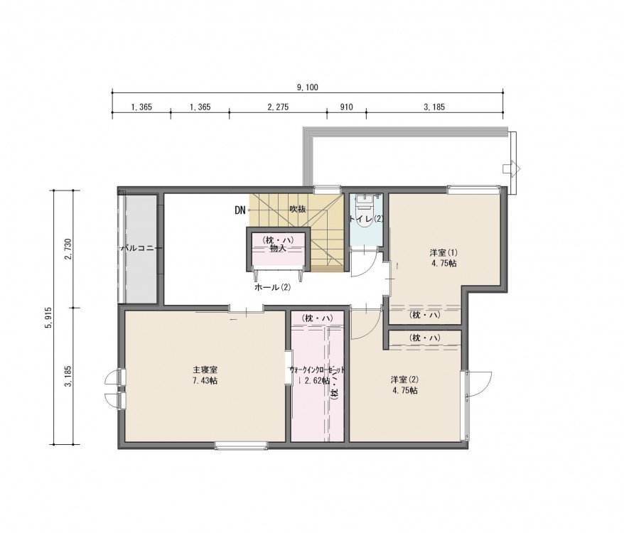
28.80坪
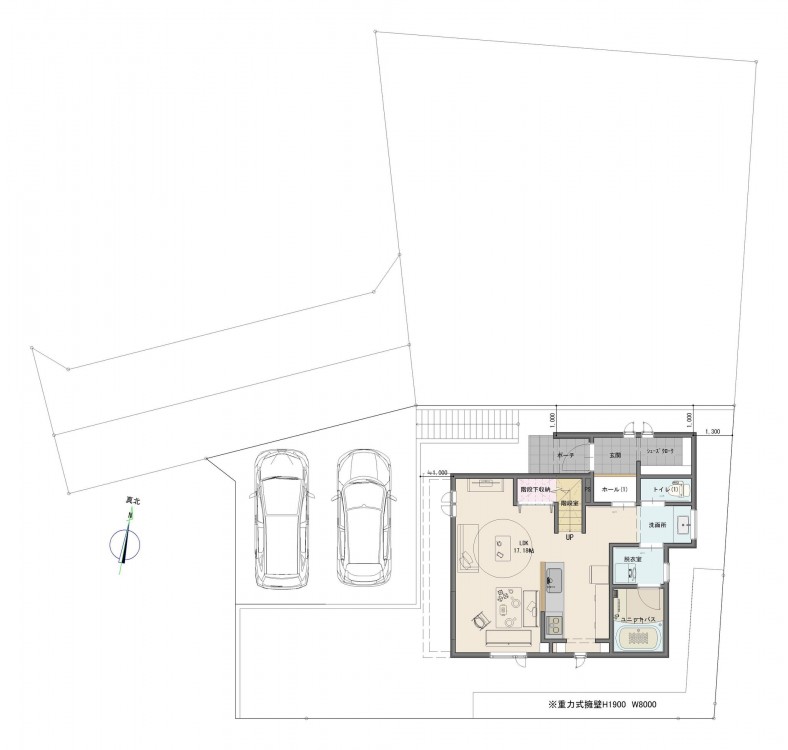
3LDK
2026年2月完成予定
太陽光発電パネル搭載のオール電化住宅
JR仙石線「下馬」駅まで徒歩8分
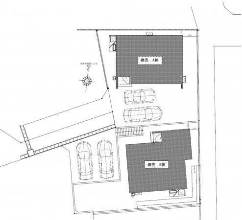
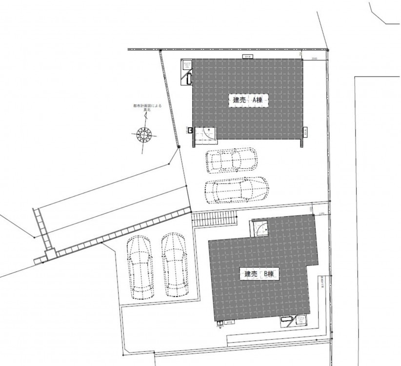
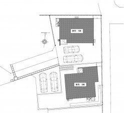
駐車2台可能
・ヨークベニマル塩釜店まで徒歩9分(703m)
・セブンイレブン塩釜南錦町店まで徒歩4分(259m)
・(財)宮城厚生協会坂総合病院まで徒歩9分(644m)
・塩釜東玉川郵便局まで徒歩12分(917m)
・塩竃市民図書館まで徒歩23分(1763m)
物件概要
- 交通
-
仙石線 下馬駅 まで 徒歩8分
東北本線 塩釜駅 まで 徒歩11分
- 接道状況
- 土地面積
- 164.94㎡ (49.89坪)
- 建物面積
- 95.22㎡ (28.80坪)
- 築年数
- 2026年 (令和8) 2月 完成予定
- 建ぺい率
- 60%
- 容積率
- 200%
- 土地権利
- 所有権
- 構造および階数
- 木造 地上2階建
- 小学校区
- 第三 ( 1300m )
- 中学校区
- 第三 ( 1423m )
- 私道負担
- あり (68.06㎡)
- 地目
- 宅地
- 現況
- 建築中
- 引渡時期
- 相談
- 駐車場
- 有
- 上水道
- 公共
- 下水道
- 公共
- ガス
- 都市計画
- 市街化区域
- 用途地域
- 1種住居
- 建築確認番号
- 第R07確認建築東建セ―0714号
- 設備・条件
- オール電化、システムキッチン、IHクッキングヒーター、食器洗浄乾燥機、シャンプードレッサー、モニタ付インターホン、ウォークインクローゼット、駐車場2台分、エコキュート、トイレ2箇所、太陽光発電システム
- 備考
-
私道負担:有。分譲地内の道路(272.22㎡)については、全2区画と隣地所有者にて、各1/4ずつ共有していただきます。
- 取引態様
- 売主

